Chicago - Windy City Classic
Schedule
Fri, 16 Jan, 2026 at 12:00 pm to Mon, 19 Jan, 2026 at 03:00 pm
UTC-06:00Location
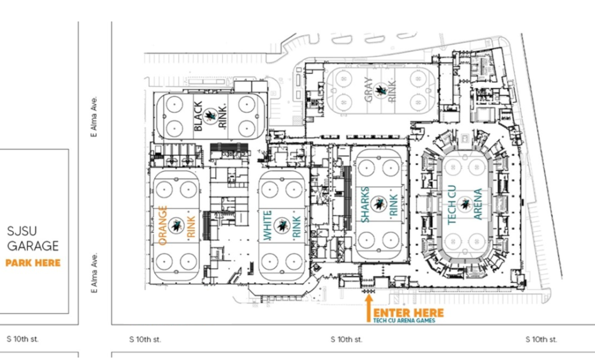
Parkway bank Sports Complex | Rosemont, IL
Advertisement
Youth Hockey Tournament
Where is it happening?
Parkway bank Sports Complex, Rosemont,IL,United StatesEvent Location & Nearby Stays:
Know what’s Happening Next — before everyone else does.

















